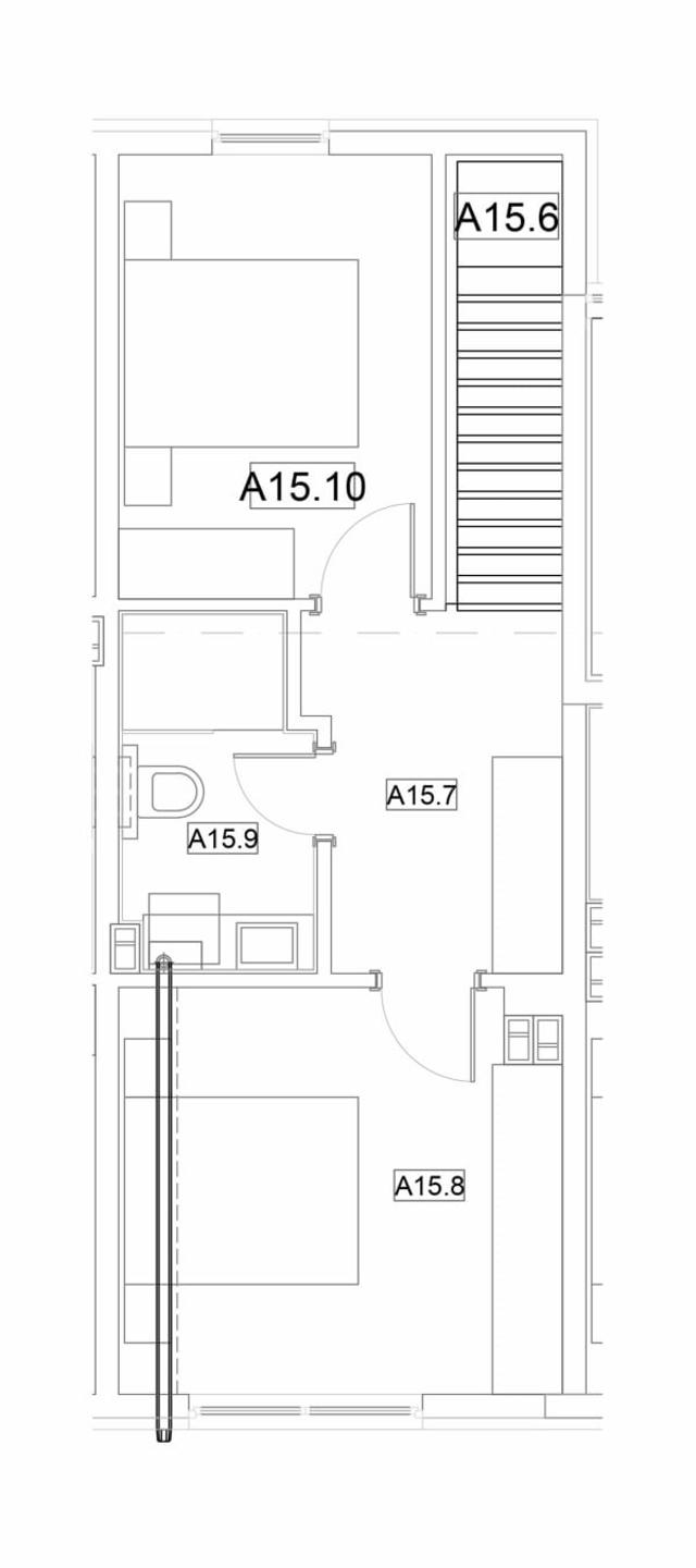
‣Osnova Stana
Stan A - 15
1. / 2. Sprat
Trosobni
68.96m2
| n | Prostorija | P[m2] | O[m] | Obrada poda | Obrada zidova | Obrada plafona |
|---|---|---|---|---|---|---|
| A15.1 | Hodnik sa garderobom | 2.69 | 6.76 | parket | disperzivna boja | disperzivna boja |
| A15.2 | Dnevna soba | 12.82 | 16.86 | parket | disperzivna boja | disperzivna boja |
| A15.3 | Kuhinja sa trpezarijom | 10.36 | 13.98 | parket / ker. pločice | boja / ker. pločice | disperzivna boja |
| A15.4 | Toalet | 1.76 | 5.52 | keramičke pločice | keramičke pločice | disperzivna boja |
| A15.5 | Terasa | 3 | / | keramičke pločice | / | / |
| A15.6 | Stepenište | 3.97 | 10.56 | parket | / | / |

| n | Prostorija | P[m2] | O[m] | Obrada poda | Obrada zidova | Obrada plafona |
|---|---|---|---|---|---|---|
| A15.7 | Hodnik sa garderobom | 6.37 | 10.68 | parket | disperzivna boja | disperzivna boja |
| A15.8 | Spavaća soba 1 | 12.88 | 14.56 | parket | disperzivna boja | disperzivna boja |
| A15.9 | Kupatilo | 4.93 | 9.6 | keramičke pločice | keramičke pločice | disperzivna boja |
| A15.10 | Spavaća soba 2 | 10.18 | 12.96 | parket | disperzivna boja | disperzivna boja |

‣Prikaz Stana


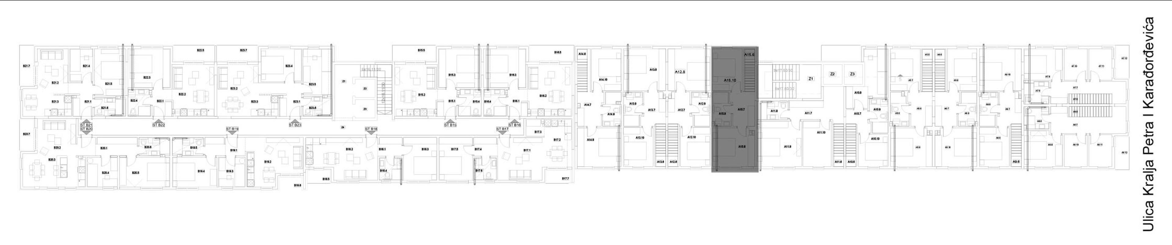
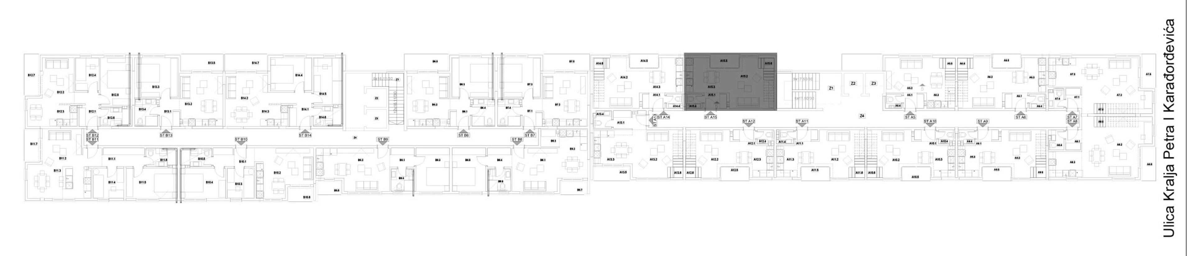
‣Pozicija Stana
‣|

‣||
