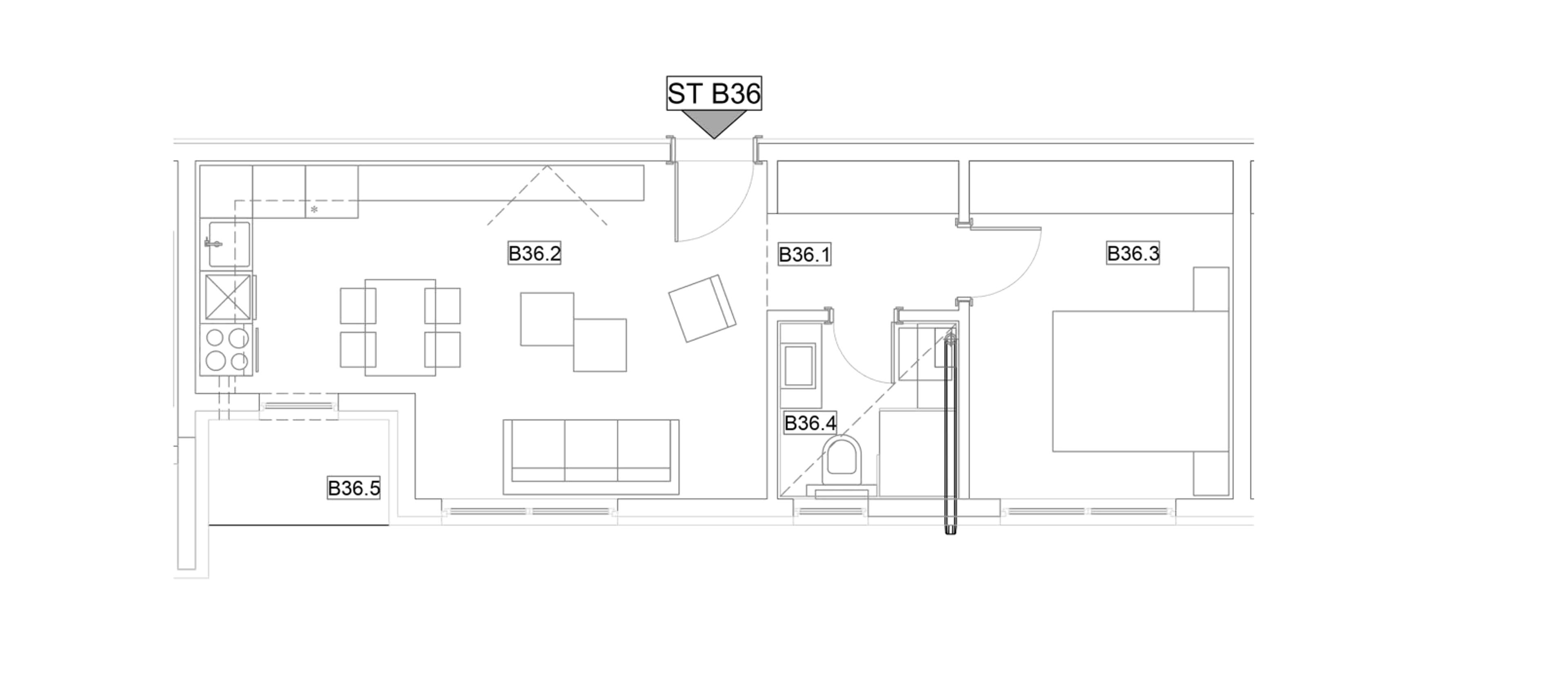
‣Osnova StanaProdat/Rezervisan
Stan B - 36
4. Sprat
Dvosobni
43.85m2
| n | Prostorija | P[m2] | O[m] | Obrada poda | Obrada zidova | Obrada plafona |
|---|---|---|---|---|---|---|
| B36.1 | Hodnik sa garderobom | 3.63 | 7.76 | parket | disperzivna boja | disperzivna boja |
| B36.2 | Dnevna soba sa kuh. i trp. | 22.03 | 20.7 | parket / ker. pločice | boja / ker. pločice | disperzivna boja |
| B36.3 | Spavaća soba | 11.55 | 13.7 | parket | disperzivna boja | disperzivna boja |
| B36.4 | Kupatilo | 4.18 | 8.18 | keramičke pločice | keramičke pločice | disperzivna boja |
| B36.5 | Terasa | 2.46 | keramičke pločice |

‣Prikaz Stana

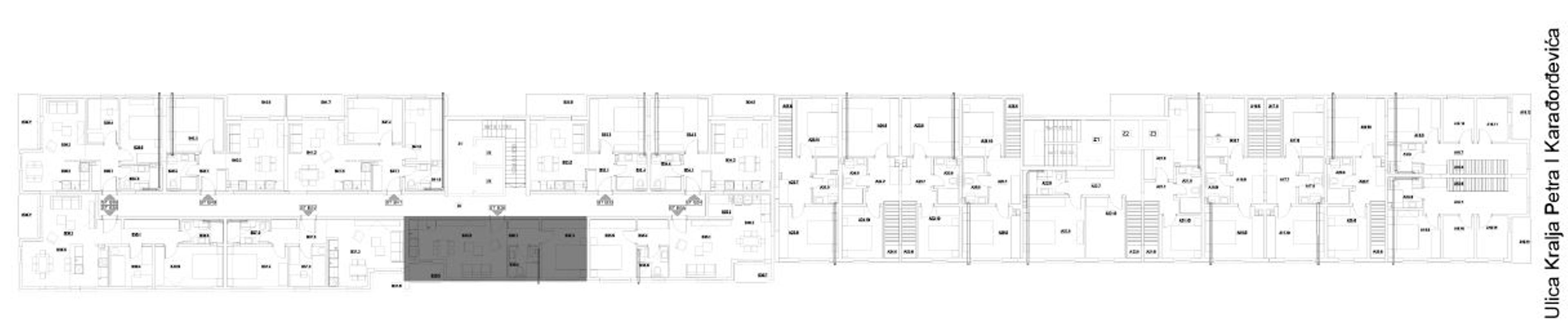
‣Pozicija Stana
