‣Osnova StanaProdat/Rezervisan
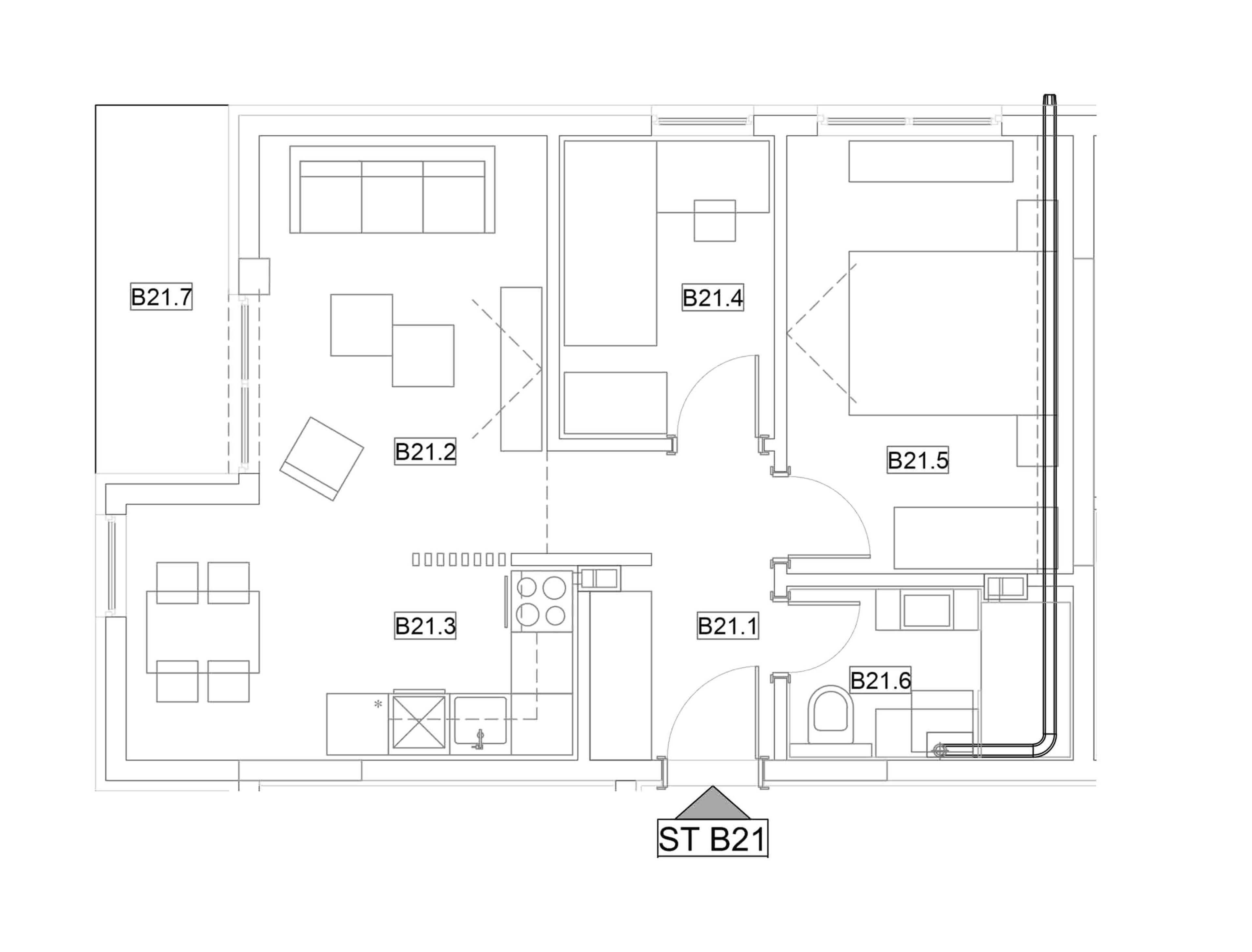
Stan B - 21
2. Sprat
Trosobni
54.18m2
| n | Prostorija | P[m2] | O[m] | Obrada poda | Obrada zidova | Obrada plafona |
|---|---|---|---|---|---|---|
| B21.1 | Ulaz sa garderobom | 5.71 | 11.68 | parket | disperzivna boja | disperzivna boja |
| B21.2 | Dnevna soba | 11.43 | 13.86 | parket | disperzivna boja | disperzivna boja |
| B21.3 | Kuhinja sa trpezarijom | 9.45 | 13.82 | parket / ker. pločice | boja / ker. pločice | disperzivna boja |
| B21.4 | Spavaća soba 1 | 6.22 | 10.12 | parket | disperzivna boja | disperzivna boja |
| B21.5 | Spavaća soba 2 | 11.98 | 14.16 | parket | disperzivna boja | disperzivna boja |
| B21.6 | Kupatilo | 4.71 | 9.26 | keramičke pločice | keramičke pločice | disperzivna boja |
| B21.7 | Terasa | 4.68 | keramičke pločice |

‣Prikaz Stana

‣Pozicija Stana
