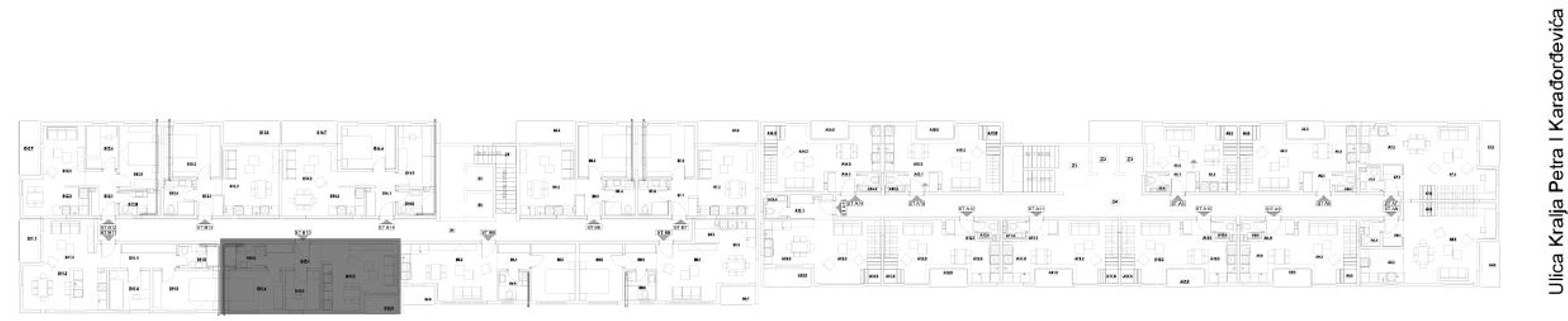
‣Osnova StanaProdat/Rezervisan
Stan B - 10
1. Sprat
Trosobni
50.00m2
| n | Prostorija | P[m2] | O[m] | Obrada poda | Obrada zidova | Obrada plafona |
|---|---|---|---|---|---|---|
| B10.1 | Ulaz sa garderobom | 5.95 | 11.8 | parket | disperzivna boja | disperzivna boja |
| B10.2 | Dnevna soba sa kuh. i trpez. | 19.76 | 20.4 | parket / ker. pločice | boja / ker. pločice | disperzivna boja |
| B10.3 | Spavaća soba 1 | 6.51 | 10.22 | parket | disperzivna boja | disperzivna boja |
| B10.4 | Spavaća soba 2 | 10.8 | 13.42 | parket | disperzivna boja | disperzivna boja |
| B10.5 | Kupatilo | 4.82 | 8.92 | keramičke pločice | keramičke pločice | disperzivna boja |
| B10.6 | Terasa | 2.46 | keramičke pločice |

‣Prikaz Stana

‣Pozicija Stana
