Sremski Vrt
Ponuda
Lamela A
Lamela B
Garaže
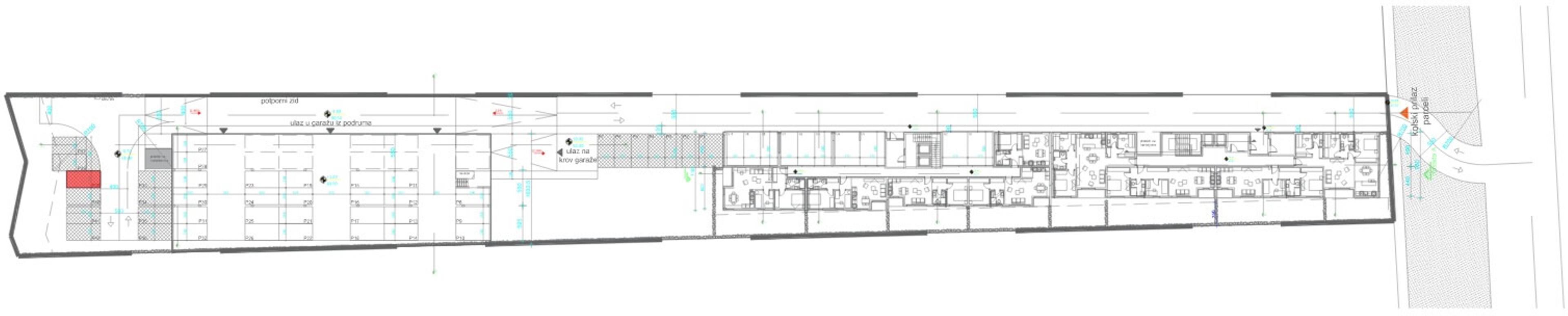
Parking
Galerija
Lokacija
Kontakt
Parking mesto
P39
Prodato/Rezervisano
‣
Pozicija Parkinga
‣
Parking Mesto
P39
STAN JE TAMO GDE SE STANE
KONTAKTIRAJTE NAS
APLICIRAJ