Sremski Vrt
Ponuda
Lamela A
Lamela B
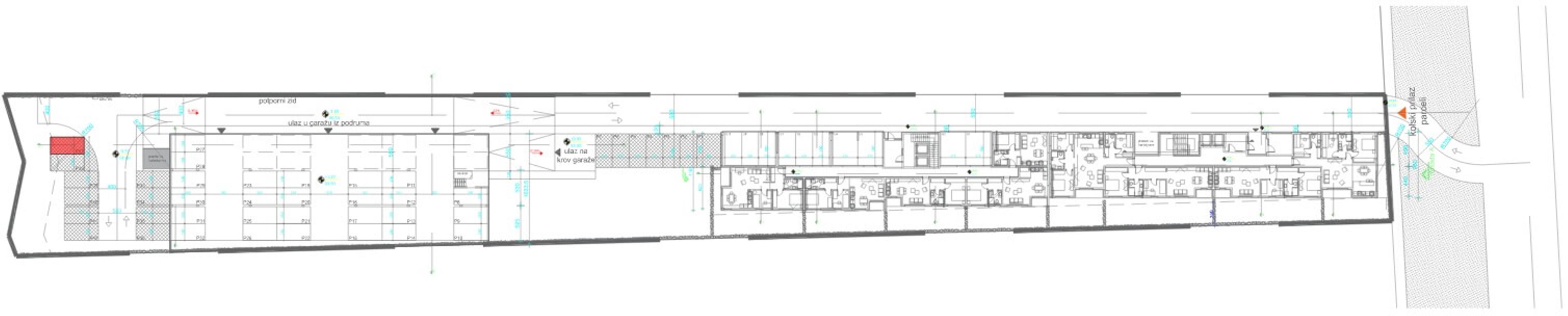
Garaže
Parking
Galerija
Lokacija
Kontakt
Parking mesto
P37
APLICIRAJ
‣
Pozicija Parkinga
‣
Parking Mesto
P37
STAN JE TAMO GDE SE STANE
KONTAKTIRAJTE NAS
APLICIRAJ