Sremski Vrt
Ponuda
Lamela A
Lamela B
Garaže
Parking
Galerija
Lokacija
Kontakt
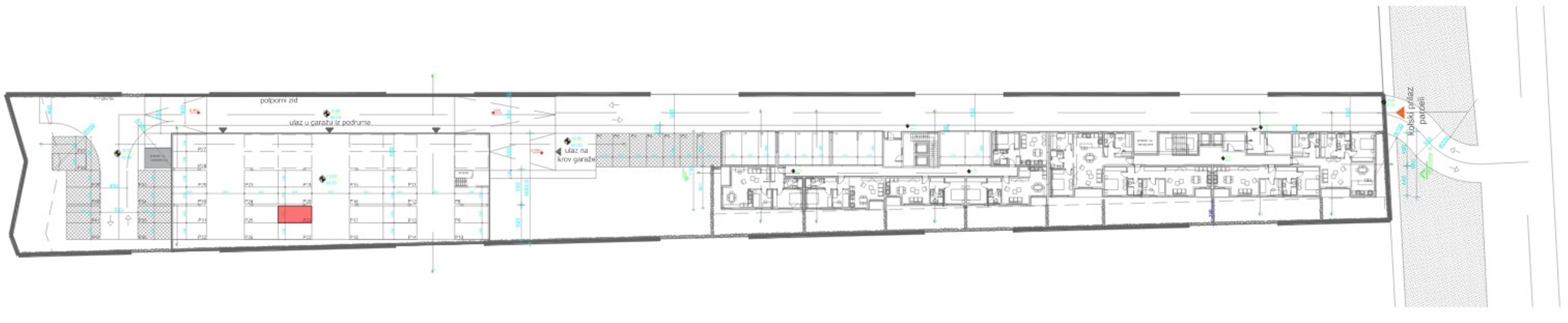
Parking mesto
P21
APLICIRAJ
‣
Pozicija Parkinga
‣
Parking Mesto
P21
STAN JE TAMO GDE SE STANE
KONTAKTIRAJTE NAS
APLICIRAJ