Sremski Vrt
Ponuda
Lamela A
Lamela B
Garaže
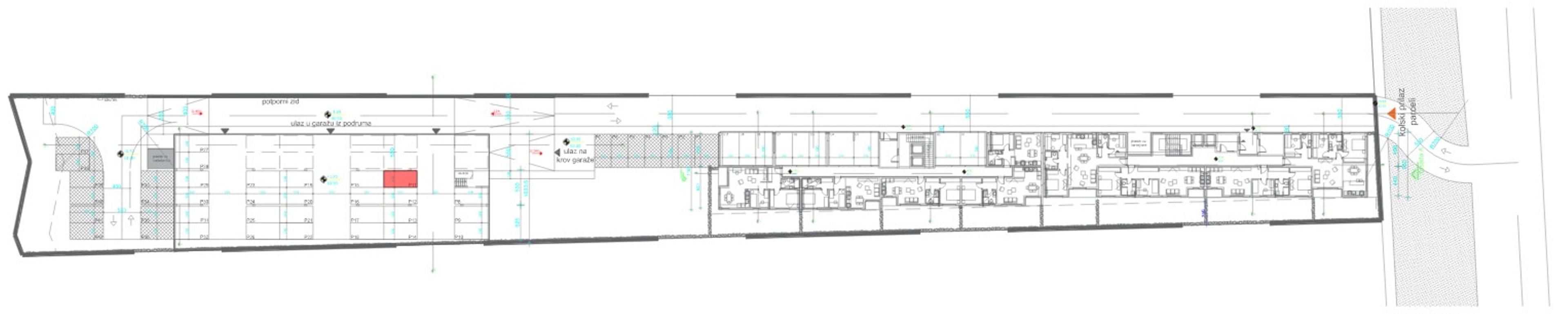
Parking
Galerija
Lokacija
Kontakt
Parking mesto
P11
Prodato/Rezervisano
‣
Pozicija Parkinga
‣
Parking Mesto
P11
STAN JE TAMO GDE SE STANE
KONTAKTIRAJTE NAS
APLICIRAJ