Sremski Vrt
Ponuda
Lamela A
Lamela B
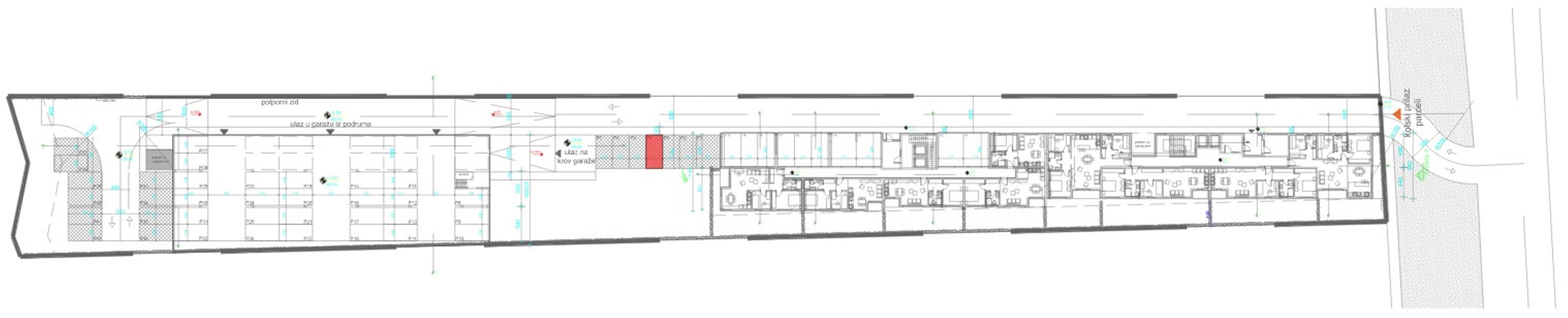
Garaže
Parking
Galerija
Lokacija
Kontakt
Parking mesto
P4
Prodato/Rezervisano
‣
Pozicija Parkinga
‣
Parking Mesto
P4
STAN JE TAMO GDE SE STANE
KONTAKTIRAJTE NAS
APLICIRAJ