Sremski Vrt
Ponuda
Lamela A
Lamela B
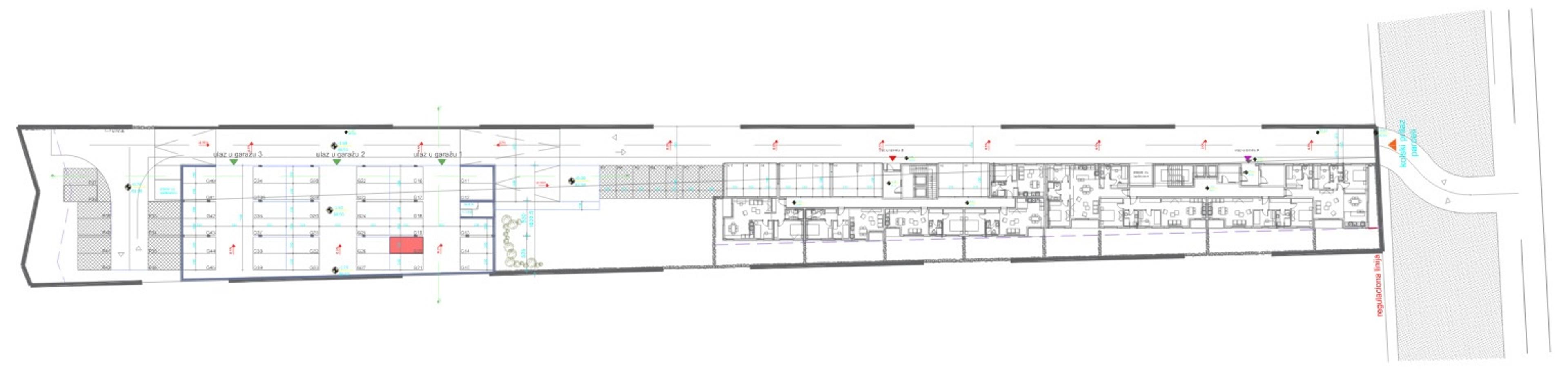
Garaže
Parking
Galerija
Lokacija
Kontakt
Garažno mesto
G20
APLICIRAJ
‣
Pozicija Garaže
‣
Garažno Mesto
STAN JE TAMO GDE SE STANE
KONTAKTIRAJTE NAS
APLICIRAJ