Sremski Vrt
Ponuda
Lamela A
Lamela B
Garaže
Parking
Galerija
Lokacija
Kontakt
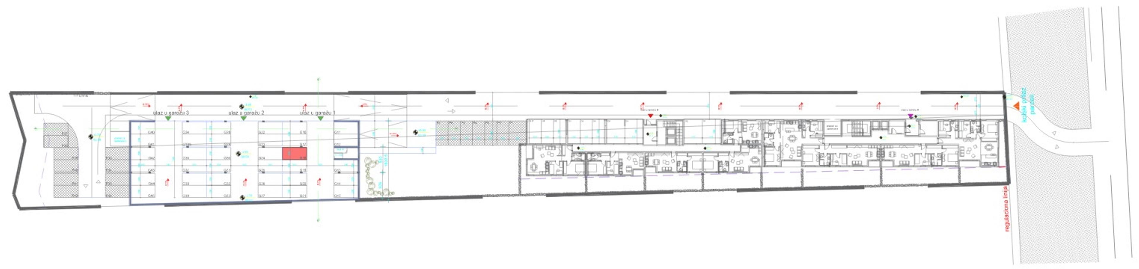
Garažno mesto
G18
Prodato/Rezervisano
‣
Pozicija Garaže
‣
Garažno Mesto
STAN JE TAMO GDE SE STANE
KONTAKTIRAJTE NAS
APLICIRAJ